UC Berkeley Clark Kerr Campus Child Development Center Adaptive Reuse

Quality early learning environments play a pivotal role in shaping the foundation of a child's educational journey. By providing safe, nurturing, and stimulating spaces, these environments foster cognitive, social, and emotional development, setting the stage for lifelong learning success…

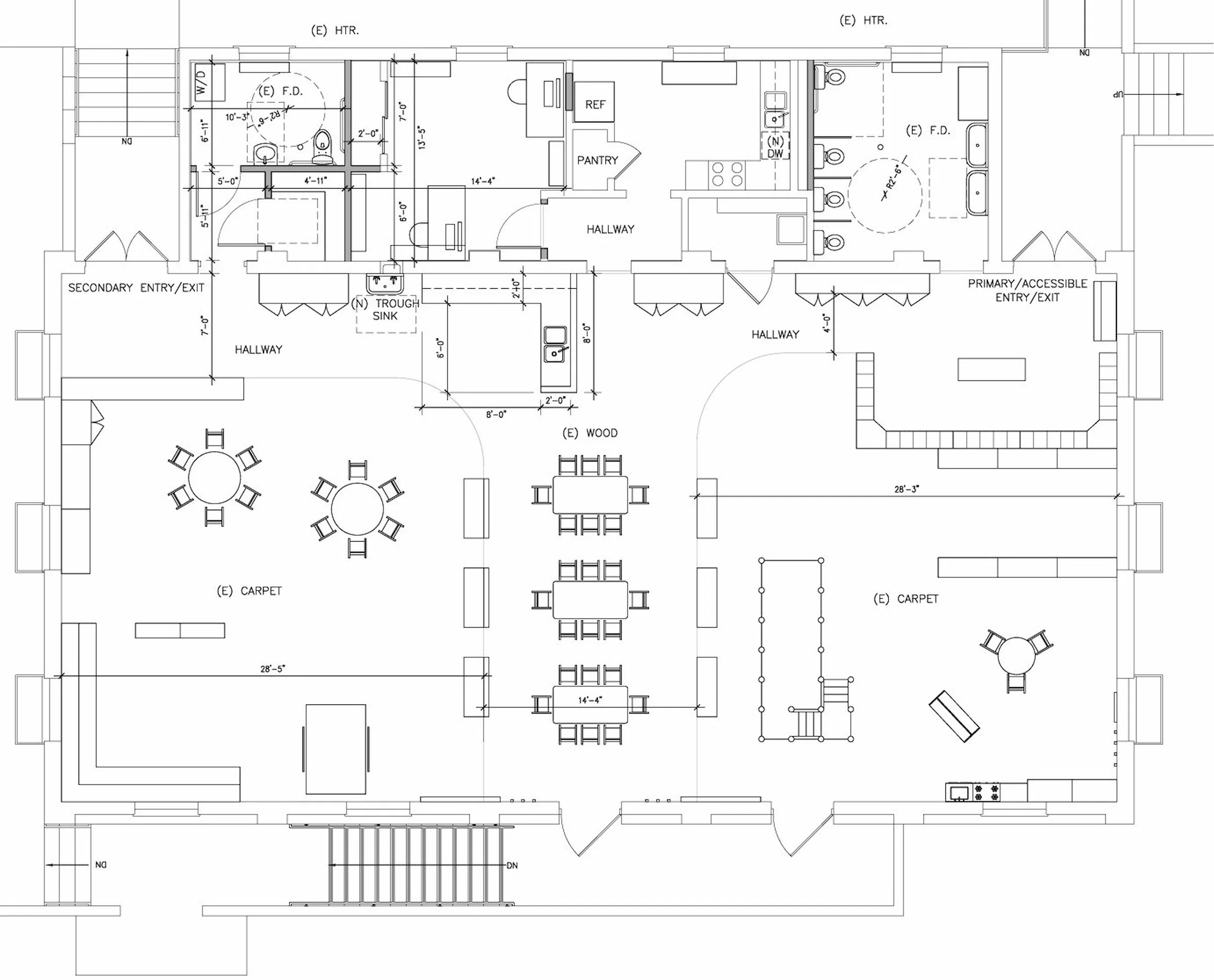
  • This adaptive reuse project transforms a former gymnasium within the historic Clark Kerr Campus at UC Berkeley into a 3,200 square foot daycare facility. The renovation includes the addition of new children’s and staff bathrooms, as well as expanded office and storage areas. The main classroom undergoes significant enhancements, featuring a new food prep kitchen, storage cubbies, cabinets, improved lighting, and acoustical treatments to mitigate noise within the concrete building shell. These upgrades aim to create a functional and welcoming environment conducive to early childhood education and care.

Previous
Previous

Malama Learning Center - O'ahu Hawaii